

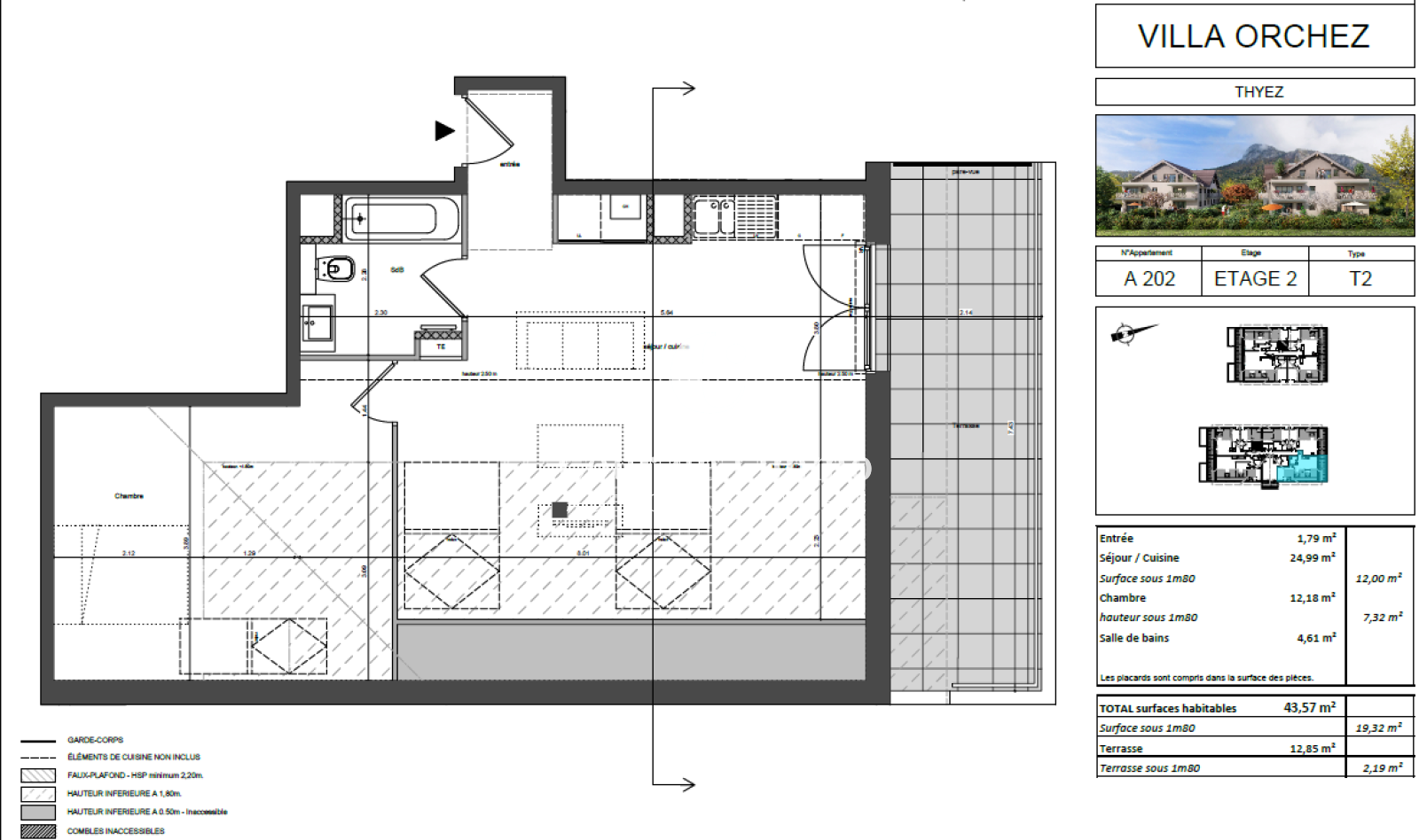
Appartement 2 pièce(s) 1 chambre(s) 43.57 m²
Thyez (74300)A propos de ce bien
Idéalement situé sur la commune de THYEZ, dans un environnement calme et proche des services. Venez découvrir cette copropriété qui allie confort et modernité.
Magnifique appartement T2 de 43,57 m² selon la Loi Carrez, offrant une surface utile de 62,89 m². Il comprend : un hall d'entrée, une belle pièce à vivre, accès à une terrasse d'environ 15 m², une salle de bain ainsi qu'une grande chambre de 19,50 m² au sol (12,18 m² Loi Carrez) et des toilettes séparées. Un garage en sous-sol, un cellier sur le palier et une place de stationnement privative complètent l'ensemble.
La résidence propose les prestations suivantes :
- Système de chauffage par chaudière au gaz
- Carrelage de 45x45 dans les espaces de vie, la salle de bain et les toilettes
- Sols en stratifié dans les chambres
- Volets roulants électriques
- Garage, place de stationnement et cellier
- Livraison pour le 1er trimestre 2027
Caractéristiques de ce bien
- Surface 43,57 m²
- carrez 43,57 m²
- séjour 24,99 m²
- 1 chambre(s)
- 1 salle(s) de bain
- cuisine américaine
- Chauffage individuel : chaudière (gaz de ville)
- 1 garage(s)
- 1 parking(s)
- 2 côté(s) mitoyen(s)
- 2ème étage
- 2 étage(s)
- cave
- terrasse
- interphone