

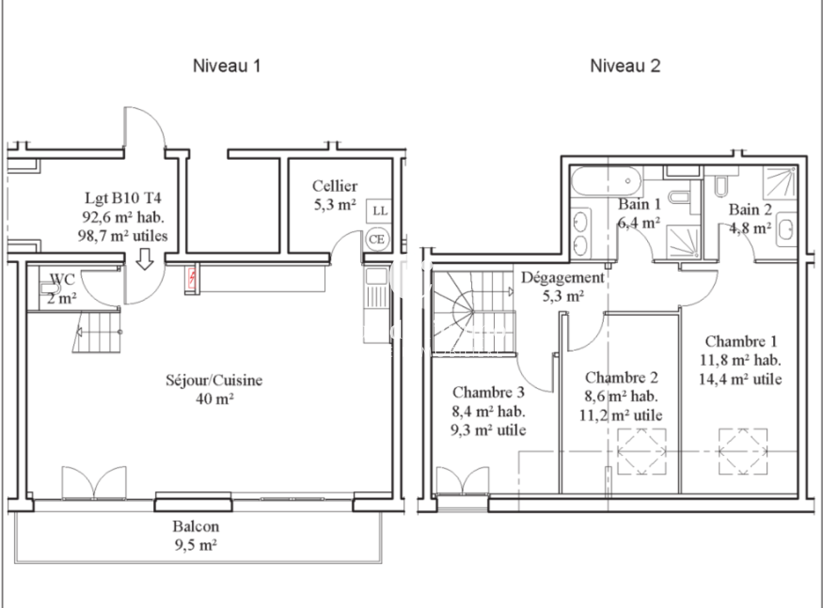
Appartement 4 pièce(s) 3 chambre(s) 95.3 m²
Saint-Jeoire (74490)A propos de ce bien
Situé à SAINT-JEOIRE (74490), au 2ème étage d'une copropriété, plateau à aménager de 95.30m² environ, avec balcon. Une cave et place de parking extérieur complètent le bien..
- Plusieurs plateaux à vendre dans cette ancienne colonie entièrement réhabilité (travaux en cours).
- Réseaux à disposition à l'intérieur du plateau (électricité, eau et évacuation).
Secteur calme, tout en étant proche des commodités (écoles, commerces, bus scolaire).
Caractéristiques de ce bien
- Surface 95,30 m²
- carrez 95,30 m²
- 3 chambre(s)
- 1 salle(s) de bain
- construit en 2025
- cuisine
- Chauffage individuel : convecteur (electrique)
- 1 parking(s)
- exposition Est
- 2 côté(s) mitoyen(s)
- 1 niveau(x)
- 2ème étage
- 2 étage(s)
- vue Montagne
- cave
- balcon