

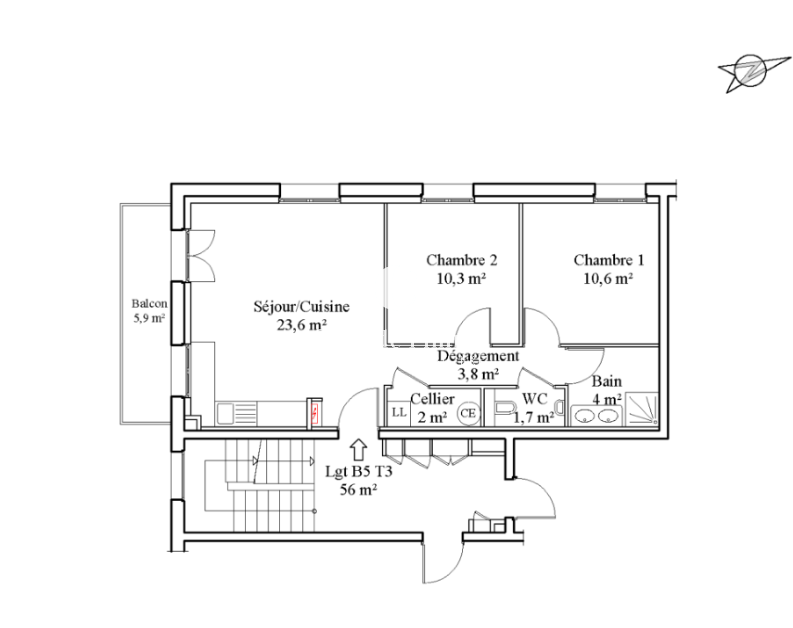
Appartement 3 pièce(s) 2 chambre(s) 60 m²
Saint-Jeoire (74490)A propos de ce bien
Situé à SAINT-JEOIRE (74490), au 1er étage d'une copropriété, plateau à aménager de 60.60m² environ, avec balcon. Une cave et place de parking extérieur complètent le bien.
- Possibilité d'acquérir des plateaux en Duplex.
- Plusieurs plateaux à vendre dans cette ancienne colonie entièrement réhabilité (travaux en cours).
Secteur calme, tout en étant proche des commodités (écoles, commerces, bus scolaire).
Caractéristiques de ce bien
- Surface 60 m²
- carrez 60,60 m²
- 2 chambre(s)
- 1 salle(s) de bain
- construit en 2025
- cuisine
- Chauffage individuel : convecteur (electrique)
- 1 parking(s)
- exposition Sud
- 1 côté(s) mitoyen(s)
- 1er étage
- 2 étage(s)
- vue Montagne
- balcon